18 Swope Avenue, Colorado Springs, CO, 80909

Image Count: 42

$450,000

  • Highlights
  • Commercial
  • Mix Use
  • 18 Swope Avenue, Colorado Springs, CO, 80909 listed by Brian Sink
  • Under Contract - Showing
  • MLS#: 2206794
  • View on Map
Space maker

Property Description

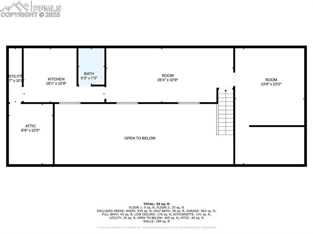
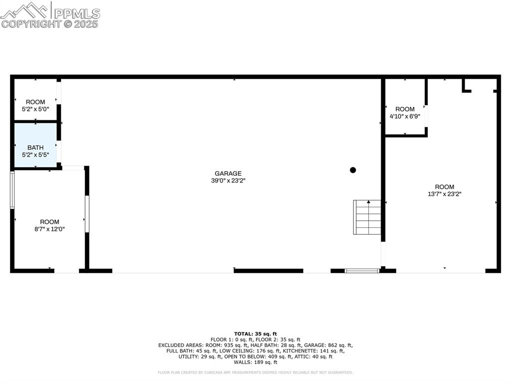
Approximately 1,500s sf detached garage/workshop zoned Mixed Use with two roll-up doors and lots of versatility for multiples types of businesses. Last used as a tool sharpening business until mid-2024. Property also has a small 2-bed 1 bath home for rental income. Home has new carpet, fresh interior paint and new toilet. Nice split-rail fenced around the home and new fencing along sides of the property. Workshop has fenced concrete rear patio, storage shed and driveway the length of the lot for easy access to the rear alley and the workshop. Workshop includes an entry foyer, large work area, half-bath on main level and an upstairs that includes two rooms, a kitchenette space and a full bath with tub/shower. Easy parking for business vehicles and an extra parking space between the workshop and alley. Great location near Platte and Union just east of downtown. With small home, could also be used to live on-site for a business owner. Workshop and home both sold as-is.

Property Listed By

Picture of REALTOR Listing Property
  • Brian Sink
  • 4233-064-917  Call the Agent 
Picture of Office Listing Property
  • The Platinum Group
  • 4444-635-917  Call the Agent 

Property Details

    Property Information

  • Offered For: Sale
  • Sale Price High: $450,000
  • County: El Paso
  • Lot SqFt: 8,000
  • Land Usage: Mixed Use
  • Tax: $1,340
  • Notices: Established Rental History

    Building and Units

  • Construction Year: 1929
  • Building SqFt: 2,402
  • Sq Ft Source: Assessor Records
  • LP Sqft: 187
  • Ground Level: Yes
  •   Total Min Avail Max Contig Avail
    Acres: 0.18
    Vacant Space: 2
    Unit 1: 742
    Unit 2: 1,660
  • Total Units: 2
  • Acres Available: 0.18
  • Bldg SqFt Available: 2,402
  • Lot SqFt: 8,000

                Disclaimer
                The real estate listing information and related content displayed on this site is provided exclusively for consumers’ personal, non-commercial use and may not be used for any purpose other than to identify prospective properties consumers may be interested in purchasing.
                PPAR.com Website

                18 Swope Avenue, Colorado Springs, CO, 80909

                Image 1 of 42: Garage

                Garage

                Image 2 of 42: Front of Structure

                Front of Structure

                Image 3 of 42: Garage

                Garage

                Image 4 of 42: Garage

                Garage

                Image 5 of 42: Front of Structure

                Front of Structure

                Image 6 of 42: Front of Structure

                Front of Structure

                Image 7 of 42: Yard

                Yard

                Image 8 of 42: Other

                Other

                Image 9 of 42: Other

                Other

                Image 10 of 42: Kitchen

                Kitchen

                Image 11 of 42: Other

                Other

                Image 12 of 42: Kitchen

                Kitchen

                Image 13 of 42: Kitchen

                Kitchen

                Image 14 of 42: Other

                Other

                Image 15 of 42: Bedroom

                Bedroom

                Image 16 of 42: Other

                Other

                Image 17 of 42: Bathroom

                Bathroom

                Image 18 of 42: Other

                Other

                Image 19 of 42: Out Buildings

                Out Buildings

                Image 20 of 42: Patio

                Patio

                Image 21 of 42: Patio

                Patio

                Image 22 of 42: Back of Structure

                Back of Structure

                Image 23 of 42: Other

                Other

                Image 24 of 42: Other

                Other

                Image 25 of 42: Garage

                Garage

                Image 26 of 42: Other

                Other

                Image 27 of 42: Bathroom

                Bathroom

                Image 28 of 42: Garage

                Garage

                Image 29 of 42: Garage

                Garage

                Image 30 of 42: Garage

                Garage

                Image 31 of 42: Garage

                Garage

                Image 32 of 42: Garage

                Garage

                Image 33 of 42: Other

                Other

                Image 34 of 42: Other

                Other

                Image 35 of 42: Kitchen

                Kitchen

                Image 36 of 42: Other

                Other

                Image 37 of 42: Kitchen

                Kitchen

                Image 38 of 42: Bathroom

                Bathroom

                Image 39 of 42: Side of Structure

                Side of Structure

                Image 40 of 42: Floor Plan

                Floor Plan

                Image 41 of 42: Floor Plan

                Floor Plan

                Image 42 of 42: Floor Plan

                Floor Plan

                Disclaimer: The real estate listing information and related content displayed on this site is provided exclusively for consumers’ personal, non-commercial use and may not be used for any purpose other than to identify prospective properties consumers may be interested in purchasing.