4720 Galley Road, Colorado Springs, CO, 80915

View of property exterior featuring stucco siding and a yard

View of front of house with a shingled roof and driveway

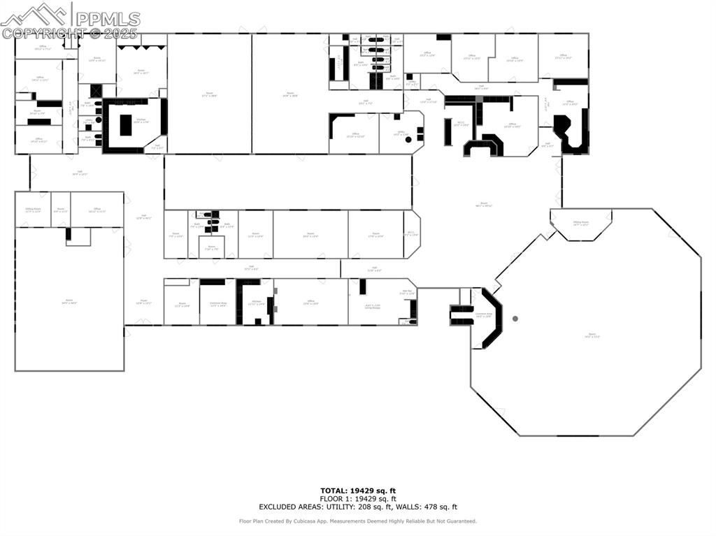
View of property floor plan

View of front facade featuring a shingled roof and stucco siding

Other

View of side of home with stucco siding and a yard

View of yard with a patio

View of front of property with a fenced front yard

View of asphalt street

Ranch-style house with brick siding

View of yard

View of front facade

Single story home featuring brick siding and uncovered parking

View of front of property featuring uncovered parking

Hall with dark colored carpet, recessed lighting, and a desk

Carpeted office featuring bookshelves, a skylight, and recessed lighting

Office space with light colored carpet and a textured ceiling

Office area featuring light colored carpet and baseboards

View of carpeted office

Kitchen with tile countertops, dishwasher, brown cabinetry, black microwave, and dark carpet

Office area with a textured ceiling and light colored carpet

Miscellaneous room featuring a textured ceiling

Misc room featuring a textured ceiling and light colored carpet

Kitchen with light countertops, black appliances, brown cabinetry, a center island, and a kitchen bar

Kitchen featuring brown cabinetry, a breakfast bar area, freestanding refrigerator, light countertops, and a center island

Other

Hallway with carpet flooring and a drop ceiling

Carpeted office space with a textured ceiling

Carpeted home office with a textured ceiling and baseboards

Living room featuring a drop ceiling and carpet

Misc room with brick wall, ceiling fan, and carpet floors

Miscellaneous room with ceiling fan, brick wall, carpet floors, and beam ceiling

Hallway with carpet flooring

Carpeted dining room featuring a paneled ceiling and concrete block wall

Kitchen featuring light floors, white appliances, light countertops, a paneled ceiling, and brown cabinets

Kitchen featuring light floors, light countertops, black appliances, and a drop ceiling

Basement featuring a drop ceiling

Other

Dining space featuring carpet floors and baseboards

Building lobby with vaulted ceiling

Other

View of carpeted living area

Cinema with vaulted ceiling, carpet, and a skylight

Carpeted home theater with vaulted ceiling and a skylight

Kitchen featuring brown cabinets, freestanding refrigerator, light countertops, light tile patterned floors, and light colored carpet

Carpeted cinema room with vaulted ceiling

Carpeted living area with recessed lighting

Other

Dining space featuring carpet flooring
Disclaimer: The real estate listing information and related content displayed on this site is provided exclusively for consumers’ personal, non-commercial use and may not be used for any purpose other than to identify prospective properties consumers may be interested in purchasing.