19720 Indi Drive, Monument, CO, 80132

Front of Structure

Entry

Office

Office

Living Room

Living Room

Living Room

Living Room

Dining Area

Kitchen

Kitchen

Kitchen

Kitchen

Dining Area

Laundry

1st bedroom

1st bedroom

1st bedroom

2nd bedroom

2nd bedroom

Upstairs Bathroom

Primary Bedroom

Primary Bedroom

Primary Bedroom with entrance to back patio

Primary bathroom and walkin closet

Bathroom

Basement Family Room

Basement Family Room

Basement Family Room

Downstairs Bedroom 

Downstairs Bedroom

Downstairs Bathroom

Additional Downstairs bedroom and walk out. 

Additional Downstairs Bedroom

Deck

Deck

Patio

Back of Structure

Back of Structure

Other

Side of Structure

Yard

Yard

Other

View

Back of Structure

Aerial View

Aerial View

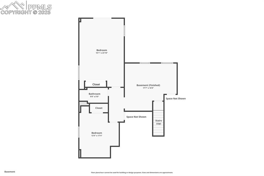
Floor Plan

Floor Plan
Disclaimer: The real estate listing information and related content displayed on this site is provided exclusively for consumers’ personal, non-commercial use and may not be used for any purpose other than to identify prospective properties consumers may be interested in purchasing.