9735 Feathergrass Drive, Colorado Springs, CO, 80927

Welcome home to Feathergrass!

Front of Structure

Front of Structure

Entry

Guest Bath

Flex Space

Sitting Room

Kitchen

Kitchen

Kitchen

Kitchen

Living Room

Living space with gas fireplace

Living Room

Living Room

Dining space with doorway to extended outdoor living space

Dining Area

Dining Area

Loft Space

Loft

Loft

Owner's Suite

Bedroom

Bedroom

5-piece ensuite bath

Bathroom

Oversized closet

Full Bath

Bedroom 2

Bedroom

Bedroom 3

Bedroom

2nd Level Laundry for Convenience

Yard

Perfectly manicured lawn for entertaining and play

Back of Structure

Back of Structure

Front of Structure

Front of Structure

Front of Structure

Aerial View

Aerial View

Aerial View

Aerial View

Aerial View

Aerial View

Aerial View

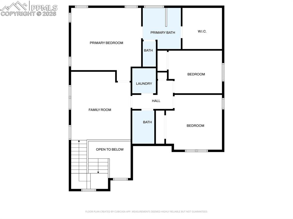
Floor Plan

Floor Plan
Disclaimer: The real estate listing information and related content displayed on this site is provided exclusively for consumers’ personal, non-commercial use and may not be used for any purpose other than to identify prospective properties consumers may be interested in purchasing.