19793 Lindenmere Drive, Monument, CO, 80132

Image Count: 50

$765,000

  • Highlights
  • Single Family
  • 6 bd | 3 ba | 3,204 sqft
  • 19793 Lindenmere Drive, Monument, CO, 80132 listed by Aimee Fletcher CLHMS GRI
  • Active
  • MLS#: 5638586
  • Tour #1
  • View on Map
Space maker

Property Description

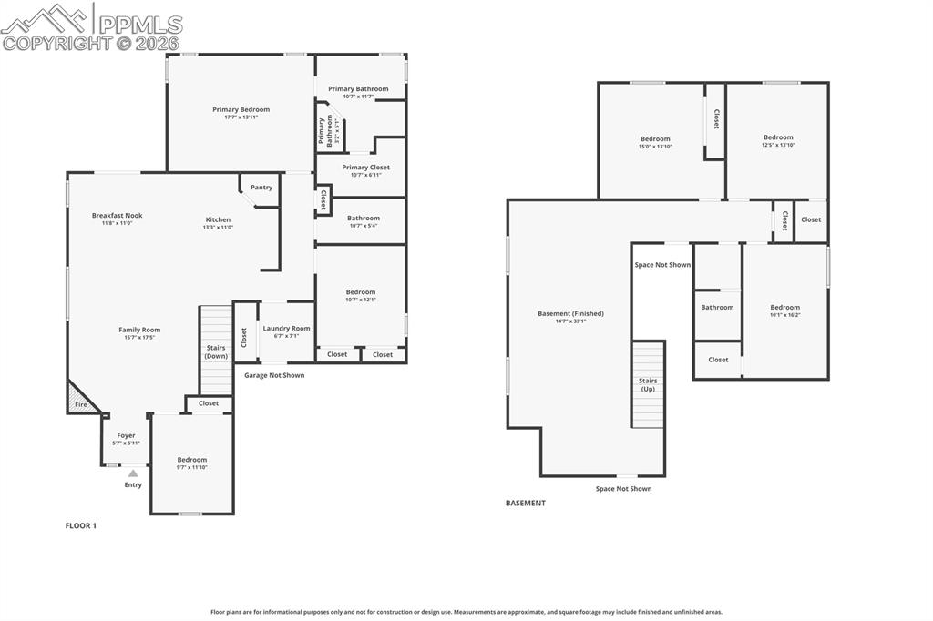
Welcome home to this warm, inviting ranch style home with true main level living set on a spacious .60 acre lot in a cul-de-sac. With a stucco and stone exterior, no HOA dues, and a 3 car oversized garage. Backing to a treed lot with mountain views, this property offers the perfect blend of privacy, space, and convenience. The main level features a comfortable living room with a gas fireplace, a dining area, and a well appointed kitchen with stone countertops, stainless steel appliances, a gas range, and pantry. The primary suite offers a relaxing retreat with a soaking tub, step-in shower, dual sinks, and a walk-in closet. Two additional bedrooms, a full hallway bathroom, and a laundry room with garage access complete the main floor. The finished basement adds exceptional flexibility with three very spacious bedrooms, two with walk-in closets, a full bathroom with dual sinks, and a huge family room. With 6 bedrooms and 3 bathrooms total, there is room for everyone! Enjoy the covered back patio and a uniquely large backyard setting, all in a highly desirable location within Lewis Palmer District 38. Just 15 minutes to USAFA, less than 5 minutes to I-25 via either Hwy 105 or County Line, about 5 minutes to downtown Monument, and with two grocery stores within 10 minutes, this home offers both peaceful surroundings and everyday convenience.

Property Listed By

Picture of REALTOR Listing Property
  • Aimee Fletcher CLHMS GRI
  • 4114-524-917  Call the Agent 
Picture of Office Listing Property
  • Exp Realty LLC
  • 4250-068-348  Call the Agent 

Property Details

    General Features

  • Property: Single Family, Ranch
  • Year Built: 2016
  • List Price: $765,000
  • County: El Paso
  • School District: Lewis-Palmer-38

    Rooms

  • Master: Main Level, 12 x 18
  • Bedrooms: 6
  • Baths: 3 full bath;
  • Master Bathroom Amenities: 5-Pc Bath, Ceramic Tile, Double Vanity, Free-standing Shower, Tub
  • Laundry: Electric Hook-up, Main

    Structure

  • Foundation: Full Basement
  • Heating: Forced Air, Natural Gas
  • Cooling: Ceiling Fan, Central Air
  • Garage/Parking #: 3 vehicle(s), Attached
  • Garage Amenities: Garage Door Opener, Oversized
  • Patio Description: Concrete, Covered
  • Total SqFt: 3,204
  • Finished SqFt: 3,123
  • Basement SqFt: 1,602
  • Basement % Fin: 95
  • Construction Status: Existing Home
  • Siding: Stone, Stucco
  • Structure: Frame

    Features

  • Appliances: Dishwasher, Disposal, Dryer, Gas in Kitchen, Microwave Oven, Range, Refrigerator, Washer
  • Floors: Carpet, Tile, Wood
  • Entry: Natural Wood
  • Fireplace: Gas, Main Level, One
  • Additional Items: Playset
  • Interior Features: 5-Pc Bath, 9Ft + Ceilings, Great Room, Vaulted Ceilings
  • Laundry: Electric Hook-up, Main

    Taxes, Utilities, Lot

  • Tax: $4,839
  • Lot Size: 0.60 Acres, 26,136 SqFt
  • Street Description: City/Town Road
  • Landscaped: All
  • Driveway: Concrete
  • Lot Location: Near Fire Station, Near Hospital, Near Park, Near Schools, Near Shopping Center
  • Lot Description: Cul-de-sac, Mountain View, Trees/Woods
  • Existing Utilities: Cable Available, Electricity Connected, Natural Gas Connected
  • Existing Water: Assoc/Distr

    Community

  • Covenants: Yes
  • Commmunity Features: Hiking or Biking Trails, Parks or Open Space

    Additional Information


      Disclaimer
      The real estate listing information and related content displayed on this site is provided exclusively for consumers’ personal, non-commercial use and may not be used for any purpose other than to identify prospective properties consumers may be interested in purchasing.
      PPAR.com Website

      19793 Lindenmere Drive, Monument, CO, 80132

      Image 1 of 50: Floor Plan

      Floor Plan

      Image 2 of 50: Front of Structure

      Front of Structure

      Image 3 of 50: Floor Plan

      Floor Plan

      Image 4 of 50: Aerial View

      Aerial View

      Image 5 of 50: Floor Plan

      Floor Plan

      Image 6 of 50: Aerial View

      Aerial View

      Image 7 of 50: Living Room

      Living Room

      Image 8 of 50: Living Room

      Living Room

      Image 9 of 50: Living Room

      Living Room

      Image 10 of 50: Kitchen

      Kitchen

      Image 11 of 50: Kitchen

      Kitchen

      Image 12 of 50: Kitchen

      Kitchen

      Image 13 of 50: Kitchen

      Kitchen

      Image 14 of 50: Kitchen

      Kitchen

      Image 15 of 50: Dining Area

      Dining Area

      Image 16 of 50: Dining Area

      Dining Area

      Image 17 of 50: Patio

      Patio

      Image 18 of 50: Master Bedroom

      Master Bedroom

      Image 19 of 50: Master Bedroom

      Master Bedroom

      Image 20 of 50: Master Bedroom

      Master Bedroom

      Image 21 of 50: Master Bathroom

      Master Bathroom

      Image 22 of 50: Master Bathroom

      Master Bathroom

      Image 23 of 50: Bedroom

      Bedroom

      Image 24 of 50: Bedroom

      Bedroom

      Image 25 of 50: Laundry

      Laundry

      Image 26 of 50: Bathroom

      Bathroom

      Image 27 of 50: Bathroom

      Bathroom

      Image 28 of 50: Bedroom

      Bedroom

      Image 29 of 50: Bedroom

      Bedroom

      Image 30 of 50: Basement

      Basement

      Image 31 of 50: Basement

      Basement

      Image 32 of 50: Bedroom

      Bedroom

      Image 33 of 50: Bedroom

      Bedroom

      Image 34 of 50: Bathroom

      Bathroom

      Image 35 of 50: Bedroom

      Bedroom

      Image 36 of 50: Bedroom

      Bedroom

      Image 37 of 50: Bedroom

      Bedroom

      Image 38 of 50: Bedroom

      Bedroom

      Image 39 of 50: Bedroom

      Bedroom

      Image 40 of 50: Patio

      Patio

      Image 41 of 50: Yard

      Yard

      Image 42 of 50: Side of Structure

      Side of Structure

      Image 43 of 50: Back of Structure

      Back of Structure

      Image 44 of 50: Side of Structure

      Side of Structure

      Image 45 of 50: Aerial View

      Aerial View

      Image 46 of 50: Aerial View

      Aerial View

      Image 47 of 50: Aerial View

      Aerial View

      Image 48 of 50: Aerial View

      Aerial View

      Image 49 of 50: Aerial View

      Aerial View

      Image 50 of 50: Aerial View

      Aerial View

      Disclaimer: The real estate listing information and related content displayed on this site is provided exclusively for consumers’ personal, non-commercial use and may not be used for any purpose other than to identify prospective properties consumers may be interested in purchasing.