308 Inca Street, Denver, CO, 80223

Charming historic Denver bungalow with classic brick exterior, steep gabled roofline, and inviting front porch. Fenced front yard adds privacy and curb appeal.

Warm and inviting living area featuring exposed brick accents, hardwood floors, and a charming fireplace that creates a cozy focal point. The open layout flows nicely into the dining space, highlighted by stylish lighting and plenty of natural light—perfect for relaxing or entertaining.

Updated kitchen with rich wood cabinetry, granite or solid surface counters, large center island with breakfast bar, stainless appliances, ample storage and bright workspaces — open to adjoining living/dining area.

Kitchen

Kitchen

Kitchen

Kitchen

Kitchen

Kitchen

Living Room

Living Room

Living Room

Living Room

Living Room

Office

Bedroom

Bedroom

Bedroom

Bedroom

Bedroom

Bedroom

Bedroom

Dining Area

Bathroom

Bathroom

Bathroom

Bathroom

Laundry

Back of Structure

Deck

Front of Structure

Parking

Deck

Deck

Back of Structure

Other

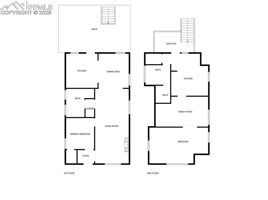
Floor Plan

Floor Plan
Disclaimer: The real estate listing information and related content displayed on this site is provided exclusively for consumers’ personal, non-commercial use and may not be used for any purpose other than to identify prospective properties consumers may be interested in purchasing.