3328 W Bijou Street, Colorado Springs, CO, 80904

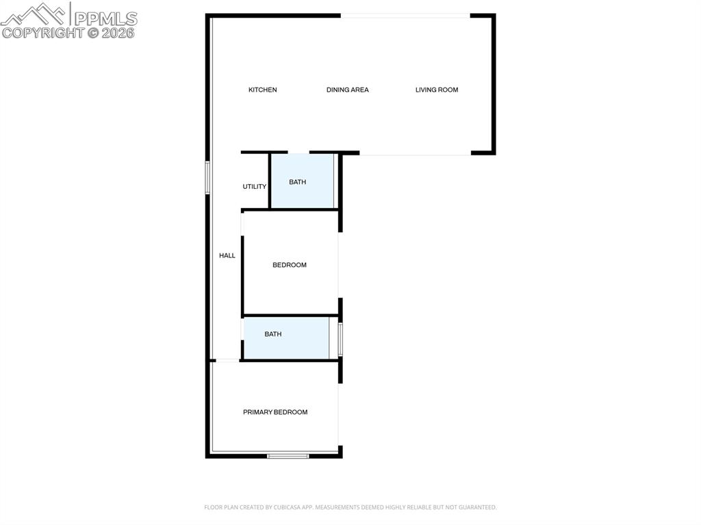
Main home is 3328 W Bijou and has 1,120 sq ft with 2 bed and 2 bath. The guest house is 3330 W Bijou and has 550 sq ft with 1 bedroom and 2 baths.

New Supplement

Large lot with Pikes Peak views and Garden of the Gods!

New Supplement

Don't miss the attached plans to build an enclosed courtyard!

New Supplement

Both bedrooms and living room has sliding glass doors.

Wonderful, covered Patio! Entrance into the Great room!

This property has got a great vibe and welcomes your guest!

Building plans are attached. Add a hottub!

98" Mini LED TV - Wall mounted in Great room conveys with the sale - Main house.

Great Room

This open floor plan is great for entertaining!

Dining Area

Big sliding doors on each side of the home. Allows an abundance of natural light!

Great Room

Entry

Great place to add a firepit for roasting marshmallows!

Large cabinets for plenty of storage.

Sleek and chic!

Gorgeous Leathered Granite countertops.

Kitchen

Huge island with breakfast bar. Skylight adding natural lighting.

Leading to the bedrooms .

Large Primary bedroom.

Check out the views out this window.

Master Bedroom

Large closets with tons of storage.

Master Bedroom

Walk in tiered shower with privacy, tile stone and sleek granite sink offers everything you need.

Vessel Rectangular Modern White Bathroom Sink sitting on sleek granite.

Good sized second bedroom.

Bedroom

Welcome to your own spa oasis.

Bathroom

Bathroom

Entrance to the Guest house.

Come on in and check this out! Opportunity knocking.

Ladder leads to the loft area. Open floor plan with living area and kitchen.

Kitchen is super functional and allows cooking with ease.

Breakfast bar.

Large living area in the guest house.

Open floor plan great for entertaining.

Bathroom in the guest house.

Guest Bedroom.

Large Guest house bedroom with sliding glass doors.

Guest bathroom with rain shower adjoins to the bedroom.

Guest house bath adjoining the bedroom.

Add a rail and a King bed will fit in this space.

Views of Garden of the Gods!
Disclaimer: The real estate listing information and related content displayed on this site is provided exclusively for consumers’ personal, non-commercial use and may not be used for any purpose other than to identify prospective properties consumers may be interested in purchasing.